Fotografía © RRa
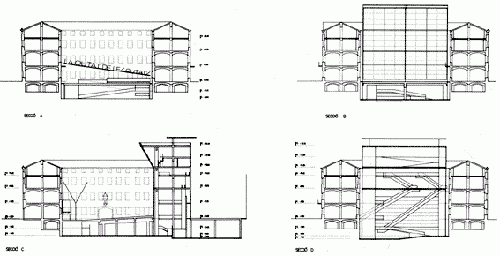
Estimulante culminación de un alzado de vidrio mediante una inclinación de 60º del mismo para relacionar el espacio claustral interno con el espacio urbano circundante en la rehabilitación de la Casa de la Caritat ahora Centro de Cultura Contemporánea de Barcelona – CCCB- (1991-93) obra de los arquitectos Helio Piñon y Albert Viaplana
¿quieres más imagenes y comentarios? pásate por facebook y twitter









La inclinación de esa fachada es realmente útil a modo de periscopio!