Fray Coello de Portugal (Jaén 1926, Madrid 2013) terminó sus estudios en la ETSA de Madrid en 1953. Un año más tarde comenzó a trabajar para la Oficina de Regiones Devastadas en Córdoba donde empujado por amigo sintió la vocación religiosa e ingresó en la Orden de Predicadores (su “segundo nacimiento”).
Cuando ese año ingresó en el noviciado fue consciente de que esta decisión le suponía abandonar la carrera profesional recién comenzada pero el destino, y nunca mejor dicho, se volvió a cruzar en su camino. En 1955, un año después de su ingreso en la Noviciado, visitó junto al Provincial de la Orden un Colegio Apostólico que estaban construyendo a las afueras de León. Un viaje a priori inocente pero que al final desencadenaría en una serie de hechos que culminarían con la oportunidad de diseñar el Santuario Virgen del Camino (1955-61) y con ello reorientar de nuevo su vida.
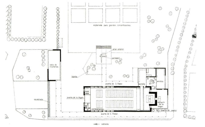
El diseño conjugaba varios elementos entre los que destacaban un gran volumen cubico. Un espacio cuya materialización pura y austera le permitió centrarse en conseguir una iluminación perfecta con la que dirigir la atención del peregrino hacia el retablo barroco que protege el altar. Mientras que a la salida, esa mirada se detiene en las vidrieras de Albert Ráfols Casamada tamizadas por un magnífico conjunto escultural de Josep Mª Subirachs en su parte exterior.
Esta obra supuso un nuevo acontecimiento en la arquitectura religiosa, y la dominica en particular, que se había construido hasta ese momento. Un hito nada fácil si se tiene en cuenta las obras religiosas construidas durante esa década como la capilla de Ronchamp (1950-55) o el monasterio de la Tourette (1957-60) de Le Corbusier, el más cercano Colegio Apostolico de los PP Dominicos en Arcas Reales Valladolid (1952-53) de Miguel Fisac (por donde pasó el mismo día que visitó por primera vez la obra de la Virgen del Camino), o el Colegio Mayor Aquinas de Madrid (1953-56) de José María García de Paredes y Rafael de la Hoz que incluso resultó Premio Nacional de Arquitectura en 1956. Pero esta obra sobre todo fue de suma importancia para su autor. Y es que en ella se fundía su vocación arquitectónica y la religiosa.: “No he tenido tiempo de soltar el lápiz ni un sólo minuto, y ahora me doy cuenta de que soy más arquitecto-dominico que dominico-arquitecto”.
Una obra que impulso al joven ya sacerdote a abrir su propio despacho de arquitectura en el convento de Santo Domingo el Real en Madrid en 1964. A partir de ese momento su lado arquitectónico no dejaría de crecer hasta llevarle a realizar más de 300 proyectos en los que pudo dejar su huello en casi todas las tipologías religiosas como santuarios, monasterios, iglesias, centros sociales, colegios mayores, centros parroquiales, capillas, oratorios e incluso una catedral en Taipéi (Taiwán).
Selección de sus mejores obras: Santuario de la Virgen del Camino, León (1955-1966); Monasterio de Santa Inés, Zaragoza (1962-1964), Colegio Santo Domingo de Guzmán, Palencia (1962-1965); Colegio de los Sagrados Corazones, Torrelavega Cantabria (1964-1968); Iglesia parroquial de Becerril de la Sierra, Madrid (1965-1968); Colegio e iglesia de los Padres Dominicos de La Felguera, Asturias (1966-1967); Convento de Santa Catalina de Siena, Alcobendas, Madrid (1966-1968); Colegio Santa Rosa de Lima, Tenerife (1967-1970); Colegio de la Sagrada Familia, Cuenca (1968); Convento de la Encarnación de Lejona, Vizcaya (1968-1976); Catedral de San Juan de Taipéi, Taiwán (2000)
¿quieres más imagenes y comentarios? pásate por facebook y twitter











