En su Fantasía cromática y Fuga de Johann Sebastian Bach, el genio de Turingia empleó una forma musical libre que se denomina fantasía que se caracteriza por su carácter improvisado e imaginativo frente a las composiciones estructurales rígidas. Esta forma permitió al compositor una mayor libertad y expresividad musical, relajando las restricciones estructurales canónicas que caracterizan los estilos convencionales.
Tal vez este símil musical podría ser aplicado a la obra del arquitecto fines Aarno Ruusuvuori (Kuopio 1925-Helsinki 1992) en uno de mis edificios predilectos: la Iglesia en Tapiola, Espoo, 1963-65, edificio que pude descubrir en un viaje a tierras finesas en la año 2012 y que tanto me sobrecogió por el entendiendo que realiza del empleo de la arquitectura en hormigón.
Ruusuvuori, a pesar de su contemporaneidad, no era miembro del TEAM X; aunque compartía con ellos parte de su filosofía proyectual y la visión de crear una arquitectura más humanizada. Su tendencia hacia la prefabricación (casa experimental en Marikylä, 1968) o las estructuras complejas de hormigón (escuela primaria de Roihuvuori, Helsinki, 1964-67) aparentemente alejan su hacer del gran L’enfant terrible Alvar Aalto que domina el complejo panorama arquitectónico finlandés de la década de los sesenta.
Ruusuvuori, comenzó a completar su lenguaje brutalista – si tomamos como referencia para definir brutalismo las imágenes que Reyner Banham aportó en su conocido libro, “The new brutalism: ethic or esthetic” – a partir de la estética del muro y bloque de hormigón desnudo, las instalaciones vistas o las carpinterías de acero; diferenciándose de aquel mundo sensual y táctil de lo textil, la madera y la cerámica que en torno a los años cincuenta y sesenta del siglo XX fue exportado desde Finlandia como contribución al nuevo humanismo de postguerra.
Es significativo, que en su legado escrito, pocas veces se mencionasen los materiales empleados en sus construcciones; aunque son parte esencial de su vocabulario su naturaleza no trasciende.“ (…) nunca he tratado de adaptar un interior a una forma exterior. El interior y la luz son los primeros factores que se deciden, después la estructura, y por último la forma externa crece a partir de estas premisas. La fase final es simplemente pulido.”[1]
Conforme a estas palabras, en el centro y origen de su arquitectura estaría la concepción de un espacio interior coherente con la función y la preocupación sobre cómo la luz debe penetrar en él. Estos principios fundacionales se organizarían tomando como base el rigor matemático del orden, la modulación y la proporción – que emplease en la organización de todos sus proyectos – para ser convertidos en estructura y forma.
Pero como J.S.Bach la arquitectura practicada por Ruusuvuori está llena de fantasías y libertades que sitúan al arquitecto en un ámbito intermedio, no clasificable, entre la dureza del material desnudo y la sensibilidad de un espacio matizado por distintas experiencias sensitivas de luz, tacto y sonido.
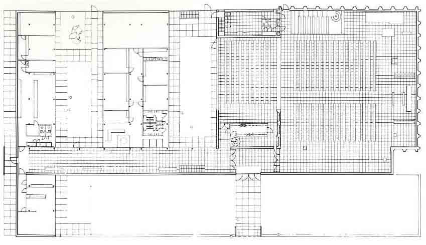
Probablemente en los espacios sacros sea donde Ruusuvuori mejor demostró la vitalidad de sus propuestas. En la iglesia y anexos parroquiales que construyese en Tapiola (1963-1965) el arquitecto realizó un complicado ejercicio de construcción en hormigón en el que empleó diferentes tipos de fábricas: prefabricados, bloques de mortero o hormigón in situ, entre otros. Los revestimientos son inexistentes así como cualquier tipo de concesión que no fuese la estrictamente necesaria; conforme al credo brutalista. En el interior de la iglesia Ruusuvuori cita a la solemnidad y a lo sublime como principios dimensionales, pero haciéndolos convivir con la sencillez y la austeridad de un interior vestido con bloques de hormigón. A pesar de la dureza táctil el espacio es cálido y acogedor; el silencio es interrumpido de manera acompasada por el regular goteo del agua sobre la pila bautismal que envuelve el gran volumen sacro; la luz es filtrada por un complejo lucernario dejándola resbalar sobre la fábrica de hormigón, adquiriendo tonalidades doradas que alejan al material de su primitiva percepción sólida.
Las mismas referencias son empleadas en el resto del conjunto parroquial. La disposición en peine de los anexos y la consiguiente alternancia de vacios y llenos facilita que la ordenada naturaleza finlandesa humanice los espacios auxiliares; ejecutados, al igual que la pieza principal, con distintas fábricas de hormigón. El muro de cristal que dispuso como cerramiento alrededor de los patios, abarcando la totalidad de la sección, desvanece el previsible interior en el jardín exterior.
En general, la obra del arquitecto Ruusuvuori es un ejercicio de alardes constructivos y concepciones estructurales, en el que las notas imaginativas, en forma de luz o sonido, se deslizan como corcheas libres sobre una partitura construida sobre un fondo de muros de hormigón.
Texto e imagenes de Óscar Ares (2017).
[1] RUUSUVUORI, Arno. Asuminen ja arkkitehtuuri, en Järjestys on kauneuden avain. Fibe Master of the north. Museum o Finnish architectura. Helsinki. 1992. P.51










Soy Carla editora deg jji Ingenieria y construcción, tratamos temas de cálculo de estructuras y Proyectos de Ingeniería, somo un grupo de Ingenieros de Sant Cugat, Me interesaría que pudieramos realizar un intercambio de enlaces para promocionar nuestras webs y conseguir más tráfico. Mi correo es carlatorresgomez83@gmail.com.