cajón (de sastre) de arquitecto

el cajón (de sastre) de arquitecto para la cultura, el diseño y la arquitectura contemporánea

Menú principal

Saltar al contenido.
  • inicio
  • actualidad
    • conferencias
    • exposiciones
    • noticias
    • premios
  • estímulos
    • alzado
    • detalle
    • estructura
    • idea
    • materia
    • planta
    • sección
    • visual
  • sentencias
  • sorteos
  • temas
    • el edificio favorito de…
    • encadenados
    • mediateca
    • variables
    • visitas
  • acerca de…

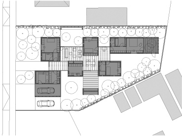
planta (house S)

19 diciembre, 2012 · de CajondeArquitecto · en estimulos, planta. ·

HOUSE S - BEVK PEROVIC

Estimulante espacio domestico definido a partir del espacio excavado en unas cajas (secundario) y del espacio que queda entre ellas (princiapal) en la House S (Praga) de Bevk Perović Arhitekti

e1211

¿quieres más imagenes y comentarios?  pásate por facebook  y  twitter

Tu voto:

quieres compartirlo?

  • Comparte en Facebook (Se abre en una ventana nueva) Facebook
  • Compartir en X (Se abre en una ventana nueva) X
  • Enviar un enlace a un amigo por correo electrónico (Se abre en una ventana nueva) Correo electrónico
  • Imprimir (Se abre en una ventana nueva) Imprimir
  • Más
  • Compartir en LinkedIn (Se abre en una ventana nueva) LinkedIn
  • Haz clic en Pinterest (Se abre en una ventana nueva) Pinterest
  • Compartir en Tumblr (Se abre en una ventana nueva) Tumblr
Me gusta Cargando...

Relacionado

Etiquetas: arquitectura sustractiva, Bevk Perović Arhitekti, embajada, estimulos, planta, praga, Republica Checa, vivienda unifamiliar

Navegador de artículos

← materia (Cineteca y Archivo de Creadores en Matadero Madrid)
materia (Centro de Interpretación de la Naturaleza) →

Una respuesta a “planta (house S)”

  1. Pingback: idea (termas de vals) | cajón (de sastre) de arquitecto·

Deja un comentario Cancelar la respuesta

Introduce tu dirección de correo aquí si quieres seguir este blog y recibir notificaciones de nuevos mensajes por correo electrónico.

Únete a otros 14K suscriptores

Entradas recientes

  • el edificio favorito de… francisco casas
  • Publicación «ZARCH #15: Procesos urbanos, dinámicas del agua y cambio climático»
  • Convocatoria «XV Bienal Española de Arquitectura y Urbanismo: España vacía / España llena. Estrategias de conciliación»
  • publicación «Dubai Forward. Architecture in a Transient City»
  • exposición «sáenz de oíza. artes y oficios»
  • el edificio favorito de… Nicolás Maruri
  • CfP: ZARCH 15 «Urban Processes, Water Dynamics & Climate Change»
  • CfP: ZARCH 15 » Procesos urbanos, dinámicas del agua y cambio climático»
  • publicación «Dubai Pop-Up. Architecture in a Transient City»
  • planta (savannah, oglethorpe plan)
  • concurso «más madera»
  • ganadores sorteo comic “MIES” + “ARDE CUBA”
  • sorteo comic «MIES» + «ARDE CUBA»
  • call for contributions: projects and texts «desert/space publication»
  • exposición «atlas de teoría(s) de la arquitectura»
  • ganadores sorteo libros “sintesis arquitectura. geométrica precisión”
  • sorteo libros “sintesis arquitectura. geométrica precisión”
  • exposicion de fotografía: «XIV BEAU 2018 Santander. La imagen habitada»
  • concurso «global warming center»
  • exposición «Navarro Baldeweg. Rings of a Zodiac»
  • ganadores “sintesis arquitectura”
  • exposición «vora. identidades compartidas»
  • sorteo libros «sintesis arquitectura. arquitectura con empatía»
  • publicación » desde la resta | from subtraction»
  • ganadores libros “tc cuadernos”
  • charles eames
  • Exposición y publicación «Fernando Moreno Barberá 1913-1998»
  • publicación «Annodamenti. La specializzazione dei tessuti urbani nel processo formativo e nel progetto»
  • sorteo libros tc cuadernos “nieto y sobejano | pereda peréz arquitectos”
  • Idea «Centro de día para enfermos de alzheimer, VRa»
  • II International Workshop “Torwards Dubai 2020, Architecture in a Transient City”
  • exposición «arquitectura viajera»
  • publicación «dibujos mentales. principios del universo creativo de juan navarro baldeweg»
  • alzado (casa en piedrabuena, muka arquitectura)
  • «concrete» ángel biyanueba
  • exposición «William Morris y compañía: el movimiento Arts and Crafts en Gran Bretaña»
  • exposición «Alberto Campo Baeza. Proyectar es investigar»
  • detalle (escalera)
  • materia (bloque de hormigón)
  • conferencia «Dubai’s Architecture: Captivating Cityscapes»
  • ganadores libros «forty and famous»
  • sorteo libros «“Forty and Famous»
  • publicación «Forty and Famous: 10 interviews with successful young European architects»
  • publicación «cámara y modelo. fotografía de maquetas de arqutitectura de españa»
  • exposición «Rafael Moneo. Una reflexión teórica desde la profesión. Materiales de archivo (1961-2016)»
  • curso “escribir arquitectura: pautas y criterios (7ed)”
  • el edificio favorito de… óscar ares
  • I International Workshop «Dubai Pop-Up, Architecture in a Transient City»
  • III International Congress «Learning from Rome: Historical Cities and Contemporary Design»
  • el edificio favorito de… jacobo garcía-germán

Si tienes alguna sugerencia o quieres colaborar te invitamos a ponerte en contacto con nosotros.

AMIGOS CAJONEROS…

AMIGOS CAJONEROS…

CAJONEANDO…

Tuits de cajonarquitecto

histórico

nuestros cajones…

cerraduras…

  • Crear cuenta
  • Iniciar sesión
  • Feed de entradas
  • Feed de comentarios
  • WordPress.com

y los más grandes…

a coruña actualidad alberto campo baeza alejandro de la sota alvaro siza alzado arquitectura arquitectura excavada arquitectura moderna arquitectura sustractiva arquitectura vernacula arte barcelona carlos labarta castillo ciclo de conferencias concurso conferencias densidad detalle documental dubái eina el edificio favorito de encadenados entrevista escalera escultura espacio estimulos estructura exposiciones fotografía francisco saenz de oiza frank lloyd wright ganadores grecia horizonte hormigón IaaC idea iglesia instalación italia iñaki bergera japón juan navarro baldeweg ladrillo le corbusier libros louis kahn luz límite madera madrid materia material mediateca mies van der rohe miguel fisac MoMA Museo Museo ICO mvrdv noticias nueva york oma pabellón paisaje pamplona paris película pintura planta portugal premio pritzker premios publicación rafael moneo rehabilitación reinterpretación rem koolhaas rodrigo canal arribas roma ruben garcia rubio sección sentencias sevilla sintesis arquitectura sorteos tc cuadernos teatro temas tesis urbanismo vacio variables vivienda unifamiliar workshop zaragoza
Blog de WordPress.com.
  • inicio
  • acerca de…
Privacidad y cookies: este sitio utiliza cookies. Al continuar utilizando esta web, aceptas su uso.
Para obtener más información, incluido cómo controlar las cookies, consulta aquí: Política de cookies
  • Comentar
  • Rebloguear
  • Suscribirse Suscrito
    • cajón (de sastre) de arquitecto
    • Únete a otros 914 suscriptores
    • ¿Ya tienes una cuenta de WordPress.com? Inicia sesión.
    • cajón (de sastre) de arquitecto
    • Suscribirse Suscrito
    • Regístrate
    • Iniciar sesión
    • Copiar enlace corto
    • Denunciar este contenido
    • Ver la entrada en el Lector
    • Gestionar las suscripciones
    • Contraer esta barra
%d