Extremo. En 1978 un joven Rem Koolhaas publica un manifiesto apológico sobre la congestión arquitectónica manhattaniana. Delirious New York. Y su pieza base, el rascacielos. Su generador principal, el ascensor. Su tablero de juego, la retícula urbana. Unas estructuras que, entre otras, fomentan la “reproducción del mundo”. “Cada uno de los niveles artificiales se trata como un solar virgen, como si los demás no existiesen”. “Los episodios que ocurren en las plantas son tan radicalmente inconexos que resulta inconcebible que puedan formar parte de un solo escenario”. “La desconexión de esas parcelas en el aire está aparentemente reñida con el hecho de que, juntas, componen un único edificio”. “Una ciudad dentro de otra ciudad”.
Puente. Entre 1981 y 1986 un joven llamado Willem Jan Neutelings colaboró en el estudio de O.M.A. Rotterdam. Y otro joven llamado Michiel Riedijk coincidió durante su último año universito en Delft con la colaboración docente de Koolhaas en la misma.
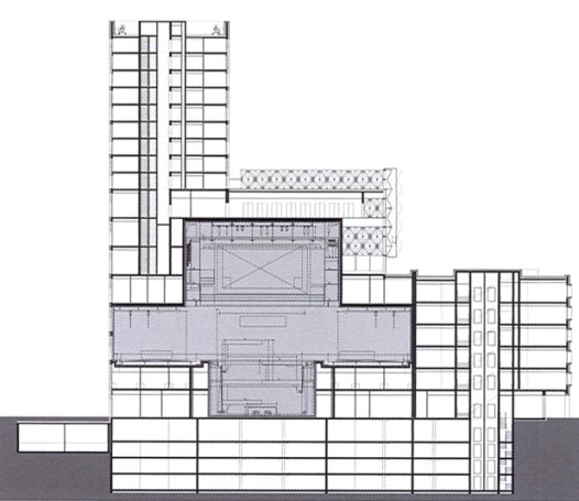
Extremo. Entre la reciente obra del estudio Neutelings & Riedijk Architecten se encuentran numerosas obras que exploran la apilación congestionada de diversos usos. Por ejemplo el “Instituto de Imagen y Sonido” en Hilversum (1999-2006) que alberga tres volúmenes independientes (Archivos, Centro de Exposiciones e Instituto de Investigación) dentro de un prisma vítreo de geometría pura. O el “Casino” en Knokke (2004) donde los dispares usos (casino, auditorio, centro talasoterapia, habitaciones, etc) se excavan en el interior de un huevo koolhaasiano. O la “Sala de Operas” de Liubliana (2004-) en la que su diverso programa (sala de ópera y conciertos, hotel, oficinas o viviendas) secciona su conjunto escultural. O el “Centro Valentin Yudashkin” en Moscú (2007-) donde las diferentes funciones (tienda, exposiciones, oficinas, jardín de invierno, restaurante o teatro) se insertan una dentro de otra configurando un edificio matrioska.
Sección del “Centro Valentin Yudashkin” en Moscú (2007-)
¿quieres más imagenes y comentarios? pásate por facebook y twitter




