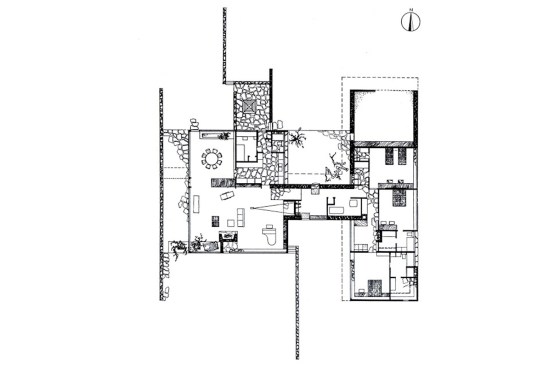
Estimulante división bifocal de la planta de una vivienda unifamiliar (two center house) en la Casa Robinson por Marcel Breuer.
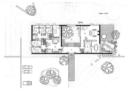
Otro ejemplo:
Marcel Breuer, CASA ROBINSON (Massachusetts – EEUU) |1946|
Marcel Breuer, CASA HOOPER (Maryland- EEUU) |1959|
¿quieres más imagenes y comentarios? no olvides seguirnos en facebook y twitter


