Una de las principales preocupaciones para los arquitectos ha sido siempre la relación del objeto arquitectónico con el medio natural en el que éste se inserta. Una inquietud cuya constancia a lo largo de los siglos ha permitido al artefacto exhibirse desde múltiples puntos de vista pero bajo los cuales siempre ha existido un alma oculta que buscaba reflejar la propia naturaleza. Por eso la calidad del respeto durante ese inicial acto reflexivo es el elemento esencial para el perfecto diálogo entre ambos elementos, Naturaleza y Artificio.
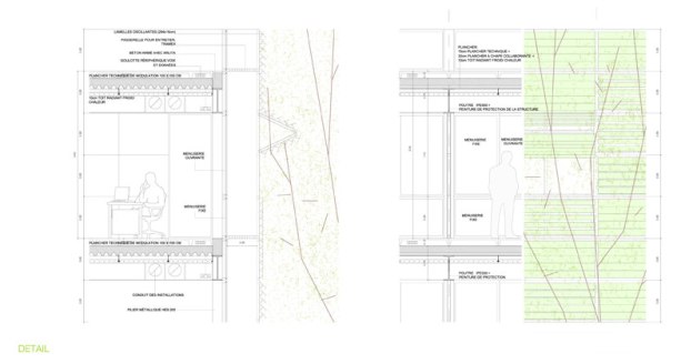
Un respecto al que se puede llegar desprendiéndose de todos aquellos elementos personales para indagar únicamente en el reflejo abstracto del concepto de Naturaleza. El Parque Científico de Cadarache (Francia) de Herreros Arquitectos es un ejemplo de ello. Un edificio cuya división en una serie de pequeñas ramas tecnológicas de forma arbitraria ayudan a insertarlo en el bosque de una forma delicada y respetuosa. Una actitud que también se refuerza por la construcción de estos artilugios mediante la superposición de un conjunto de planos verticales que permiten percibir a las construcciones como una capa más dentro de la espesura natural y no como objetos extraños insertados en ella.
Un respecto que no tiene por qué ser siempre jerárquico, como lo era la Naturaleza en el caso anterior, sino que también puede establecer un dialogo entre iguales. En este caso la casa Garoza 10.1 del mismo autor es un claro ejemplo. Una machine à habiter que exhibe con orgullo su origen tecnológico puesto que es en ese fuerte contraste natal donde paradójicamente reside su profundo respeto. Un contraste cuyo punto álgido reside en el espacio que se establece entre ambos elementos, solo alterado por finos y puntuales pilares, puesto que es en ese lugar donde Naturaleza y Artefacto se miran cara a cara y muestran sus respetos.
Dos obras que aunque de forma antagónica muestran el profundo respeto y el deseo del autor de (re)habitar la Naturaleza.
Herreros Arquitectos, PARQUE CIENTIFICO (Cadarache, Francia) |2007-|











