Imagenes © Dezzen + RRa
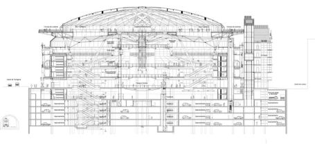
Estimulante sección como resultado de la inclusión de un objeto hipertegnológico en el interior de una plaza de toros neomudejar para rehabitar un espacio en desuso en Las Arenas de Barcelona por Rogers-Stirk-Harbour+Partners y Alonso y Balaguer Arquitectos
¿quieres más imagenes y comentarios? pásate por facebook y twitter












un mal proyecto! malo para la ciudad, innecesario alarde estructural, fachada dejada como elemento puramente decorativo en el exterior, del que nada se beneficia el interior…con el coste que debía tener a nivel constructivo hacer lo que se hizo… de verdad, una actuación nada respetuosa, nada sutil, nada sugerente.
Estamos de acuerdo en cómo responde el edificio a todos los temas que expones pero a nosotros nos parecia interesante en este caso era solamente la sección principal. Una compleja sección en la que el fuerte contraste que se observa entre la parte preexistete y la nueva (en el plano contructivo, estilistico o material por ejemplo) nos parecia estimulante desde el punto de vista didáctico dada esa radicalidad que muestra la sección. De todas formas, nos sugeririas alguna otra sección en este sentido?
Estoy de acuerdo que en relación con el entorno urbano, lo desorbitante del coste, etc, el proyecto flojea pero lo sección es interesante