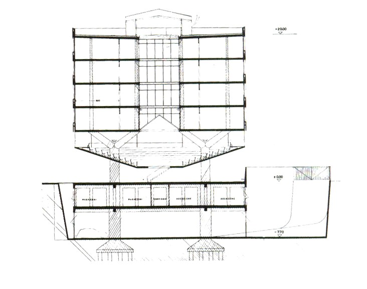
sección (proyecto para la sede del partido democrazia cristiana)

SECCION LONG

Estimulante sección formada por diez pilares-arboles bajo cuya copa cuelgan diversos objetos en el proyecto para la Sede del Partido Democrazia Cristiana (EUR, Roma, 1956-57) de Adalberto Libera

MAQUETA

PLANTA

SECCION TRANS

ALZADO

¿quieres más imagenes y comentarios? pásate por facebook y twitter

Deja un comentario