planta (facultad de geológicas y biológicas, ignacio álvarez castelao)

cajondearquitecto_facultad-geologicas_-alvarez-castelao-2

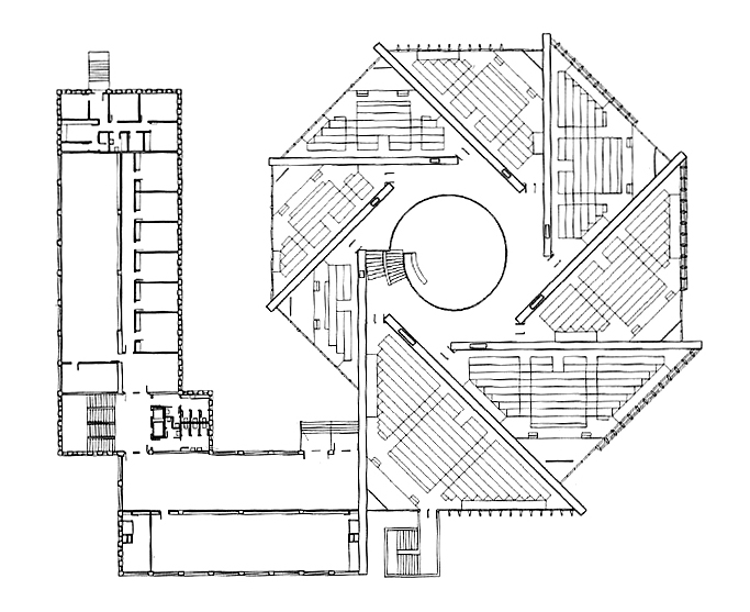
Estimulante agrupación en planta de una serie de aulas en una espiral decreciente entorno a un vacio central en la Facultad de Geológicas y Biológicas (Oviedo, 1965-69) de Ignacio Álvarez Castelao.

cajondearquitecto_facultad-geologicas_-alvarez-castelao-3

castelao-facultadgeologicas-1

castelao-facultadgeologicas-2

castelao-facultadgeologicas-3

¿quieres más imagenes y comentarios?  pásate por facebook  y  twitter

Deja un comentario