Imágenes © Plateau Team y Santiago Jiménez Cortés
Solar Decathlon es un evento que se organiza a nivel internacional con motivo de promover el desarrollo de viviendas autosuficientes, buscando una arquitectura limpia y sostenible. Este próximo verano se celebrará en Versalles y desde las Universidades de Alcalá de Henares y Castilla la Mancha se crea Plateau Team.
Se trata de un equipo multidisciplinar de estudiantes cuya propuesta para la competición es Symbcity House. Este proyecto nace del estudio del contexto urbano actual. El abandono de las ciudades tradicionales, causado por la incontrolable expansión urbana de las últimas décadas, es el principal desafío al que las ciudades europeas deben hacer frente en la actualidad. En España, el fenómeno de la sub-urbanización es un gran problema en cuestiones de energía, contaminación y movilidad, sobre todo en el área metropolitana de Madrid.
SymbCity House se inspira en el concepto de Simbiosis: la relación de beneficio mutuo entre organismos naturales. Una nueva vivienda autosuficiente cooperará con los edificios existentes para alcanzar los objetivos de sostenibilidad que actualmente se exigen a nuestras ciudades y con el fin de ayudar a detener la destrucción de nuestro medio ambiente.
Plateau Team propone la colonización de las cubiertas de los edificios existentes mediante la construcción de un nivel superior. Se podrían desarrollar una amplia variedad de usos, desde instalaciones públicas a viviendas, en las que se centra el proyecto. La venta de éste suelo urbano adicional, las cubiertas de los edificios, ayuda a financiar una operación de rehabilitación global del edificio, creando de esta manera un beneficio mutuo entre las viviendas «Anfitrión» (existentes) y las viviendas “Huésped” (nuevas). Las nuevas viviendas serán construcciones de consumo energético casi nulo, mientras que las viviendas de los edificios anfitriones conseguirán al menos una certificación energética B.
Se plantea una estructura de madera independiente al edificio existente por el exterior. El sistema estructural generado amplia las viviendas existentes creciendo éstas 1 metro hacia el exterior, aumentando la superficie de la vivienda y creando una cámara de aire gracias a la nueva fachada, donde se puede almacenar calor, reduciendo el consumo de calefacción en invierno.
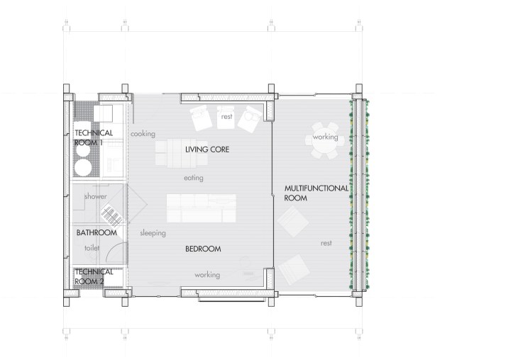
Siguiendo un patrón estandarizado, se crean tres áreas diferenciadas en la vivienda. La estancia principal es el espacio donde tienen lugar la mayoría de actividades diarias como cocinar, comer o descansar e incluye el dormitorio. El segundo espacio, es una habitación multifuncional que trabaja como patio o como invernadero dependiendo de la estación del año, y el tercer espacio es un bloque técnico que contiene las instalaciones y los cuartos húmedos y ha sido diseñado con una estructura independiente.
En cuanto a la construcción, los muros de la vivienda están compuestos por gruesas capas de aislante para evitar la pérdida de calor. Al mismo tiempo, se incorporan materiales innovadores de cambio de fase para mantener una temperatura constante dentro de casa. La incidencia solar es cuidadosamente controlada por aleros y otros dispositivos de protección solar. De esta manera, obtenemos un buen equilibrio entre estrategias de ahorro activas y pasivas, logrando un consumo casi cero de energía.
La habitación multifuncional es un espacio muy flexible que puede ser adaptado en función del cambio de estaciones. Se convierte en un lugar fresco en verano, comportándose como un patio tradicional mediterráneo donde la protección solar, la ventilación y un jardín vertical refrescan el ambiente. Durante los meses fríos, la envolvente está completamente cerrada, convirtiéndose en un invernadero que proporciona calefacción adicional a la casa.
Actualmente el proyecto está en fase de construcción en Albacete y Alcalá de Henares para posteriormente unificarse y transportarlo a París.
Escrito por Plateau Team
quieres más imagenes y comentarios? pásate por facebook y twitter






