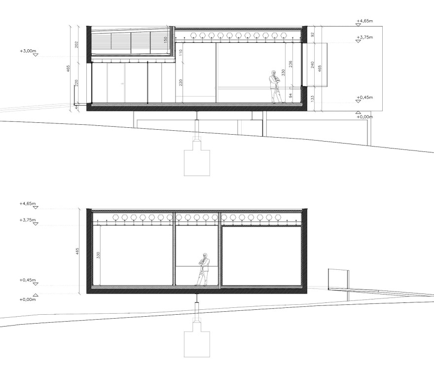
sección (laboratorios biokilab, taller básico de arquitectura)

section 1 and 2

Estimulante sección que crea un plano base a partir de dos cajas huecas de hormigón armado suspendidas en cuatro minúsculas (y coloridas) patas en los Laboratorios Biokilab (Vitoria, 2010) de Taller Básico de Arquitectura

12

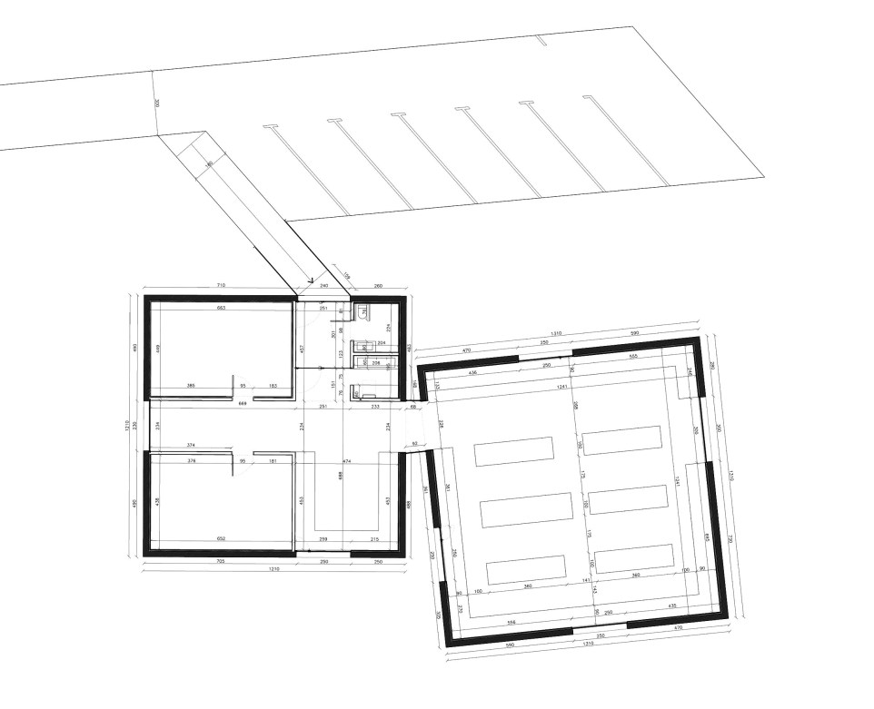
Ground floor

section 3tbasrvESTUDIO[tba][tba]publicacionespublicaciones 2013tectonica

Exif_JPEG_PICTURE

Exif_JPEG_PICTURE

Exif_JPEG_PICTURE

8

Exif_JPEG_PICTURE

Exif_JPEG_PICTURE

8

¿quieres más imagenes y comentarios?  no olvides seguirnos en facebook  twitter

Deja un comentario